Het Binnenste Buitenhof is parlement, kennisinstelling en bezienswaardigheid tegelijkertijd.
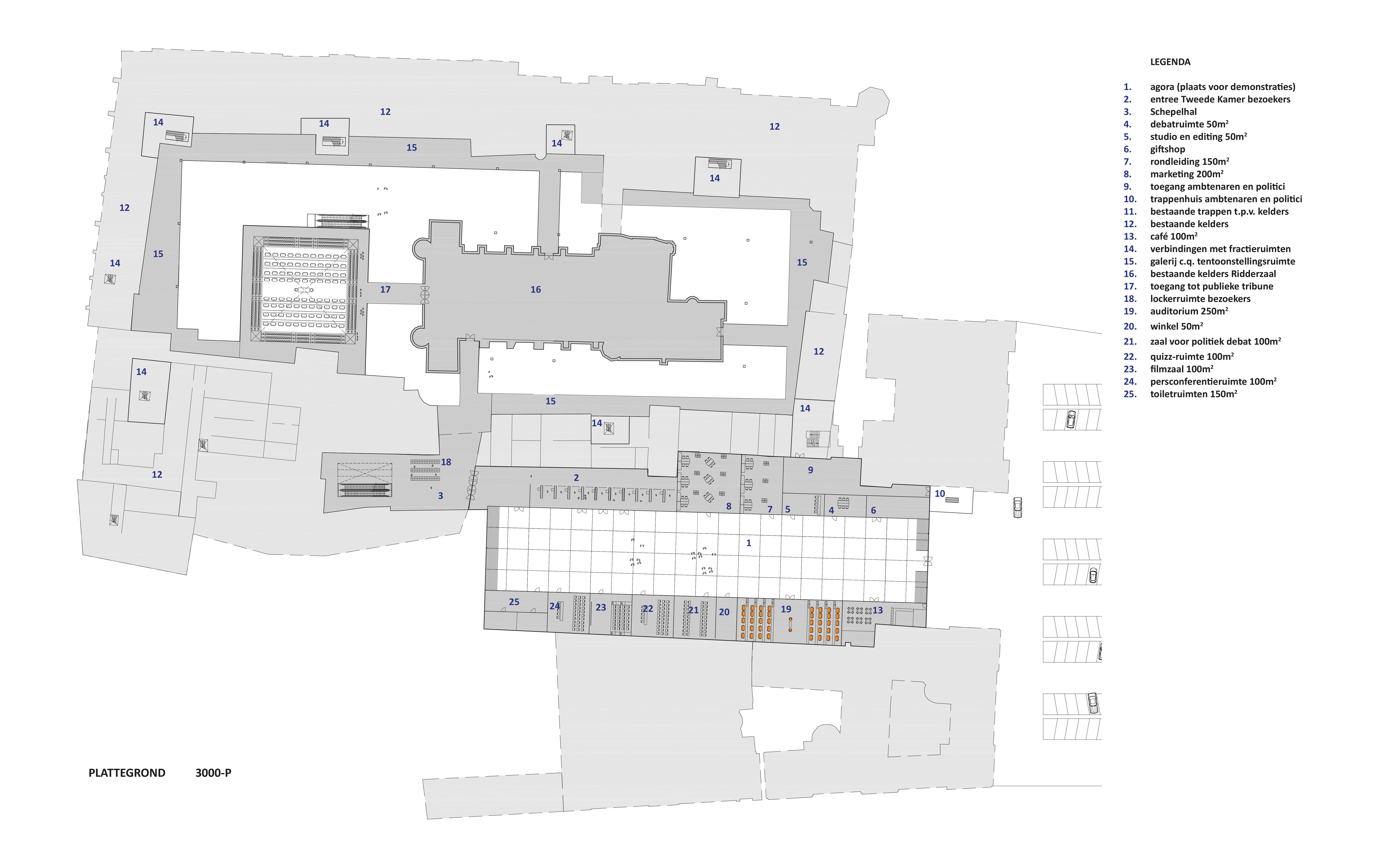
Het project zorgt voor nieuwe inzichten in de politiek en toont haar werking door middel van Het Huis voor Democratie. Het Binnenste Buitenhof zoekt de niches van de bestaande bebouwing op. Leegstaande daken krijgen nieuwe functies terwijl bestaande kelders worden gebruikt om nieuwe routes te genereren. Het gehele Binnenhof is uitgediept waardoor er zich onder het hof een nieuwe politieke agora bevindt. Hierdoor prijkt de Ridderzaal nog meer dan tevoren als een statussymbool boven de politiek uit.
De burgers kunnen de politici letterlijk op de vingers kijken en controleren of zij hun vertegenwoordigende taken goed uitvoeren. Als tegenhanger van de achterkamers is de politieke agora overzichtelijk en licht. Er wordt plaats geboden aan informele samenkomsten tussen politici en ambtenaren van de Tweede Kamer, onder het toeziend oog van de bevolking. De politici bereiken deze ruimte door middel van trappenhuizen die aansluiten op de bestaande kelders van Het Binnenhofcomplex. Alle fractieruimten zijn verbonden met de centraal gelegen agora die op haar beurt weer aansluit op de plenaire zaal. De maximale loopafstand om bij de plenaire zaal te komen voor een politicus is hierdoor hooguit 150 meter.
De samenkomst van bezoekers en politici geeft ter plaatse van de plenaire zaal aanleiding tot verdere verbijzondering van Het Binnenhof. Zo bevindt de nieuwe plenaire zaal zich deels ondergronds en deels boven het maaiveld. Ze vormt het hart van de fracties door haar centrale ligging. Ten opzichte van de vroegere situatie stemt de vergaderzaal nu veel meer overeen met de wensen van haar gebruikers dan eerst. Zo zit het kabinet tezamen met de coalitiepartijen tegenover de oppositiepartijen, hetgeen een veel betere afspiegeling is van onze democratie. De Kamervoorzitter zit in het verlengde van de Ridderzaal waardoor zij gevoelsmatig een respectabele positie inneemt in de zaal. Het volk bevindt zich rondom en boven het strijdtoneel.
Overdag hebben de politici vanuit het nieuwe commissiecircuit in de daken uitzicht op de omgeving. ‘s Avonds lichten deze ruimten op als een aureool boven Het Binnenhof waardoor het principe van ‘zien en gezien worden’ zich weer omdraait. Door het Binnenste Buitenhof is de Tweede Kamer niet langer onvindbaar naast Het Binnenhof maar is ze volledig geïntegreerd mét Het Binnenhof. De politiek wordt zichtbaar en herkenbaar. Er is letterlijk een beter zicht op de plenaire vergaderzaal terwijl het zicht, figuurlijk gezien, verbetert door het integreren van het Huis van de Democratie met de Tweede Kamer.















