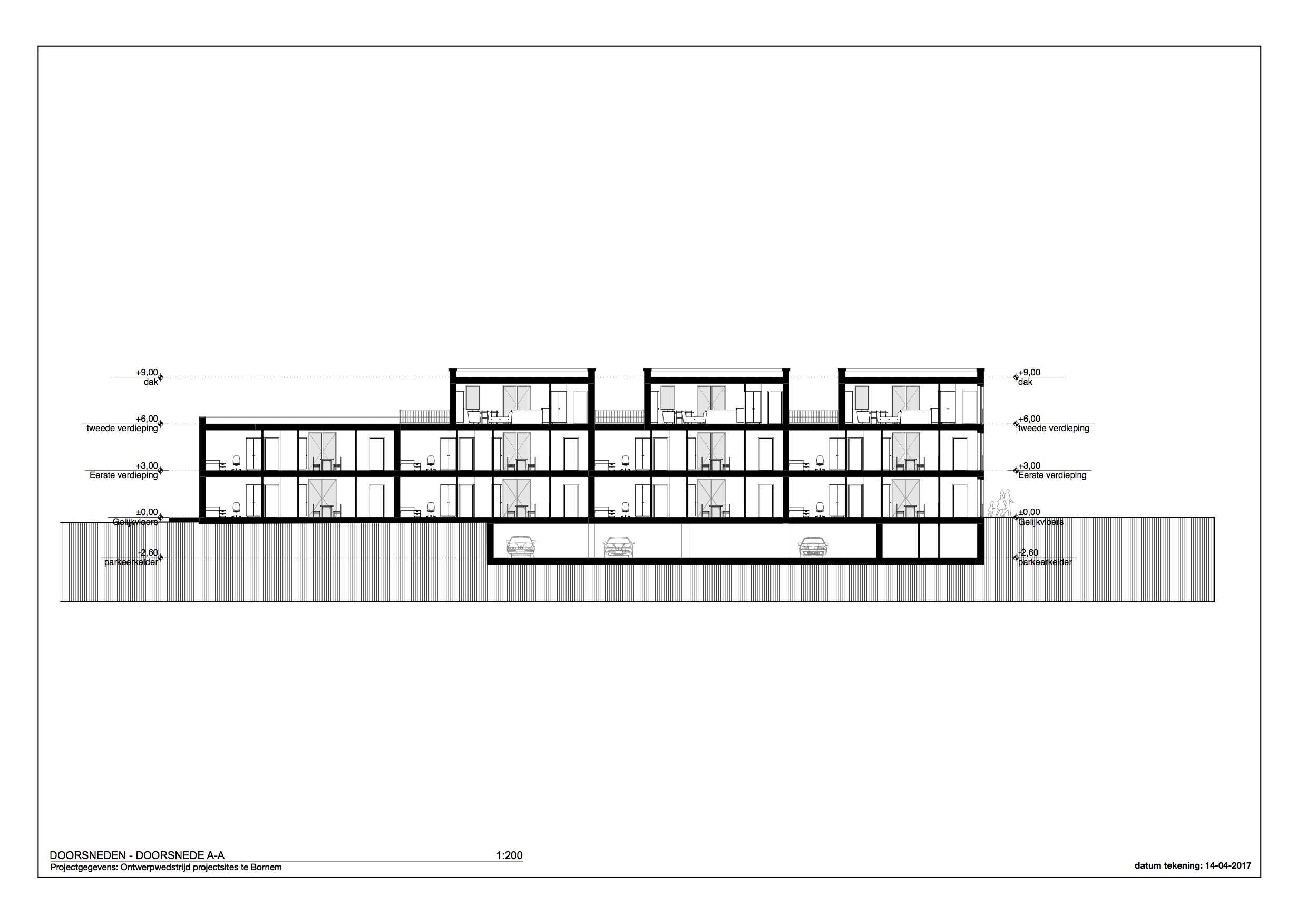
Dit bouwblok voor sociale woningen in Bornem is haaks op de straat ontworpen. Hierdoor richten de woningen zich op het groene binnengebied in plaats van op de drukke verkeersader. De woningen zijn oost-west georiënteerd en ontworpen volgens het doorzon principe waardoor een hogere mate van daglicht de leefruimten kan binnentreden.
Over het terrein wordt een publieke verbinding gecreëerd. Deze doorgang heeft een open en groen karakter, hetgeen informele contacten tussen de bewoners zal stimuleren.
Om de kavel een zo’n groen mogelijk karakter te geven, zijn de autostandplaatsen ondergronds gepositioneerd. De volledige kavel blijft zo autovrij waardoor het groen kan overheersen.
Dit is een project uit de orderportefeuille van Groep Archo Architecten: www.archo.be




















